Bureaux Paris 115 m2
PARIS 75009
    
                    4 257 € / mois
            charges comprises *
            
                                    * dont charges récupérables : 507 € / mois
Dépôt de garantie : 11250 €
                    Honoraires charges locataires: 13800 € TTC
                                            
dont honoraires d'état des
                        lieux: 300 € TTC.
                                    
                                    Proposé par votre agence :
                                
                                
                16 Rue Notre Dame de Lorette
75009 Paris
Réf : 2599
    Guy Hoquet Saint-Georges vous présente, au coeur du 9ème arrondissement rue Thimonnier, des bureaux à louer au rez-de-chaussée d'un bel  immeuble en pierre de taille.
- Surface de 115 m² 
 - Loyer annuel : 45.000 € HC + TVA
 - Charges annue...  Voir plus
    
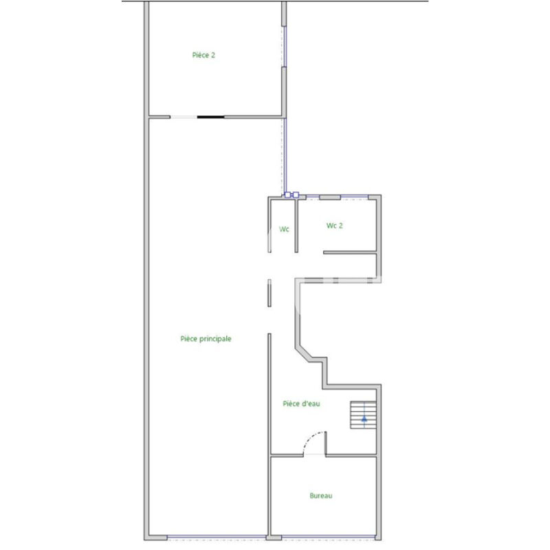
                            115 m²
            3 pièce(s)
            Bureaux Paris 115 m2
                        Descriptif
Réf : 2599
    Guy Hoquet Saint-Georges vous présente, au coeur du 9ème arrondissement rue Thimonnier, des bureaux à louer au rez-de-chaussée d'un bel  immeuble en pierre de taille.
- Surface de 115 m² 
 - Loyer annuel : 45.000 € HC + TVA
 - Charges annue...  Voir plus
    
                        115 m²
            3 pièce(s)
            Fiche technique du bien
Bilan énergétique
 
                                                            GES non communiqué
Les informations sur les risques auxquels ce bien est exposé sont disponibles sur le site Géorisques : www.georisques.gouv.fr 
                    Le quartier
16 Rue Notre Dame de Lorette
75009 Paris
Les horaires
Lundi
                                
                                                                                                                                                                09h30 - 19h30
                                                                                                            
                            Mardi
                                
                                                                                                                                                                09h30 - 19h30
                                                                                                            
                            Mercredi
                                
                                                                                                                                                                09h30 - 19h30
                                                                                                            
                            Jeudi
                                
                                                                                                                                                                09h30 - 19h30
                                                                                                            
                            Vendredi
                                
                                                                                                                                                                09h30 - 19h30
                                                                                                            
                            Samedi
                                
                                                                                                                                                                Ouvert uniquement sur rendez-vous                                                                                                            
                            Dimanche
                                
                                                                                                                                                                Fermé
                                                                                                            
                             
                     
 
                                                                     
                                                                     
                                                                     
                             
                             
                             
                        